
間取りをクリックすると拡大図がご覧いただけます。
| 所在階 号室 |
坪数 | 間取り図 | 賃料+共益費(税別) 坪単価 |
保証金 坪単価 |
募集状況 |
|---|---|---|---|---|---|
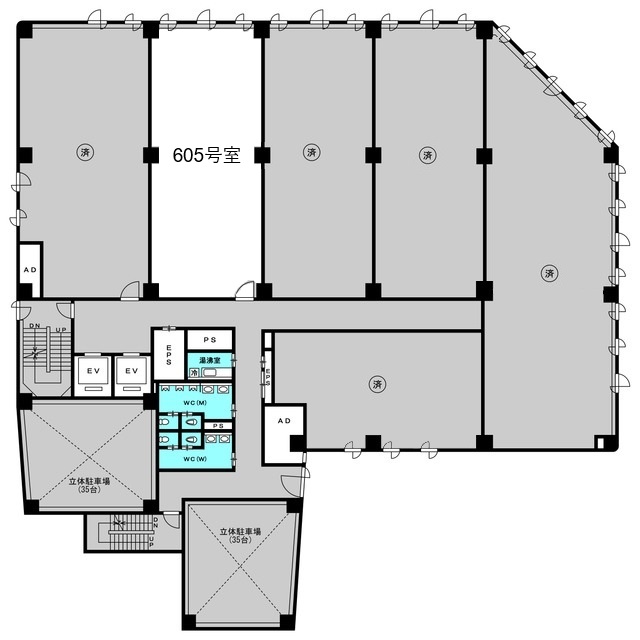
| 6階 605 |
29.03坪 | ![]() |
277,000円 | 1,740,000円 | 3月末入居可 |
| 所在階 号室 |
坪数 | 間取り図 | 賃料+共益費(税別) | 保証金 | 募集状況 |
|---|---|---|---|---|---|
| 4階 404 |
17.02坪 | ![]() |
174,000円 | 1,110,000円 | 即入居可 |
| 所在階 号室 |
間取り | 間取り図 | 賃料 (共益・管理費) |
敷金/礼金 | 保証金/敷引 | 専有面積 | 募集状況 |
|---|---|---|---|---|---|---|---|
| 4階 410 |
1K | ![]() |
5.8万円 (4,000円) |
- 11.6万円 |
- - |
37.18m² | 要相談 |
| 所在階 号室 |
間取り | 間取り図 | 賃料 (共益・管理費) |
敷金/礼金 | 保証金/敷引 | 専有面積 | 募集状況 |
|---|---|---|---|---|---|---|---|
| 5階 501 |
3LDK | ![]() |
12万円 (10,000円) |
- 12万円(※) |
- - |
63.52m² | 2月末入居可 |
※ペット(犬・猫)可(但し一匹につき礼金1ヶ月UP、2匹迄)
| 所在階 号室 |
間取り | 間取り図 | 賃料 (共益・管理費) |
敷金/礼金 | 保証金/敷引 | 専有面積 | 募集状況 |
|---|---|---|---|---|---|---|---|
| 3階 302 |
3LDK | ![]() |
10.5万円 (12,000円) |
10.5万円(※) 21.0万円 |
- - |
65.17m² | 即入居可 |
※ペット飼育時は2ヵ月(21.0万円)。
| 所在階 号室 |
間取り | 間取り図 | 賃料 (共益・管理費) |
敷金/礼金 | 保証金/敷引 | 専有面積 | 募集状況 |
|---|---|---|---|---|---|---|---|
| 2階 204 |
3LDK | ![]() |
13.5万円 (15,000円) |
13.5万円 27.0万円 |
- - |
83.97m² | 即入居可 |
ザ・梅田タワー
ベルヴィ東園田
ファミール天神橋グリーンアベニュー
ファミールハイツ鳳サウスフォレストⅢ番館
伊丹グリーンマンション
春日部ファミールハイツ
パークノヴァ三鷹
ファミール上新庄